Domestic Triumph on Boylston Avenue – Architecture Critic Will Morgan

Will Morgan, Architecture Critic

Domestic Triumph on Boylston Avenue – Architecture Critic Will Morgan

19 Boylston Avenue, Royer Architects. PHOTO: Will Morgan

 

A modest house on a leafy street with a collection of intriguing domestic architecture is a refreshing change from the over-optioned, grossly expensive dwellings that are being developed across the East Side. Architect Christopher Royer’s new home at 19 Boylston Avenue is important on several levels. Despite–or because of–its 2,100-square-feet size, the uncomplicated gable-roofed house is an environmental triumph wrapped in a mantle of understatement.

GET THE LATEST BREAKING NEWS HERE -- SIGN UP FOR GOLOCAL FREE DAILY EBLAST

 

After a career in Cambridge, Royer and his wife, Barbara Nathan, a graphic designer, have followed children and a grandchild to Providence. Plus, as Nathan says, “We like the spirit of this town and this neighborhood.” In addition to building right and for his needs rather than his ego, perhaps most significant is the designer’s respect for the scale and character of the neighborhood. (Royer’s mentor at the University of California, Berkeley was Christopher Alexander, the guru of meaningful and accessible architecture.)

 

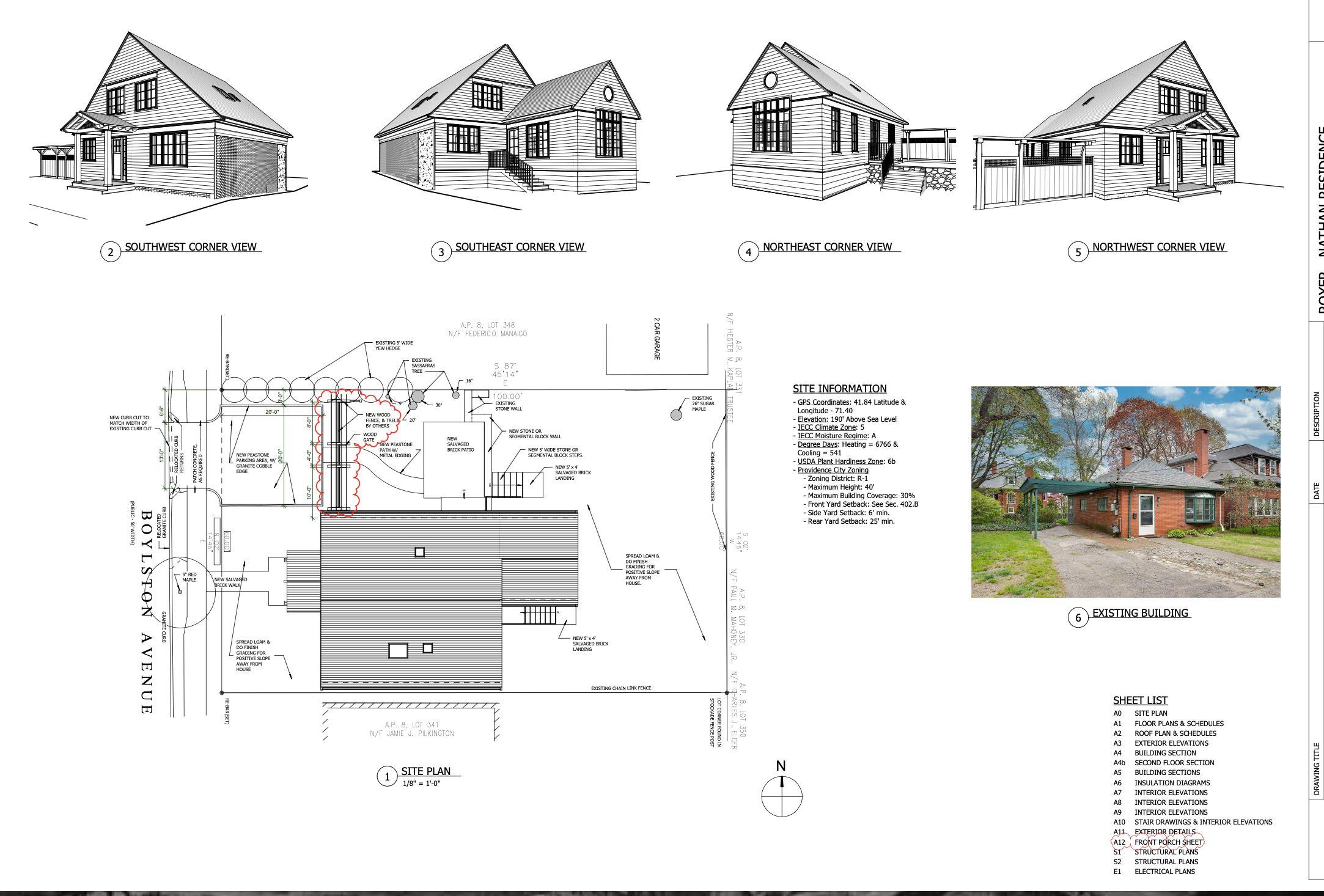
19 Boylston mimics the scale and massing of its 90-year-old neighbor. PHOTO: Will Morgan

 

In an increasingly dispiriting, even mean fashion, older houses on the East Side are bought as tear downs, so better built and more attractive properties are often lost and replaced by conspicuous nouveau riche displays of multi-car garages, multi-pitched roofs, and aesthetically puffed-up designs more suited to a suburban golfing community than to the tightly-knit fabric of an historic neighborhood.

 

Carriage house/servants’ quarters of the Nicholson estate between Blackstone Boulevard and Slater Avenue, one of several century-old structures torn down to accommodate half a dozen large new homes. PHOTO: David Brussat

 

A new house planned for the former Nicholson estate. Jamestown architect Ron Stevenson describes himself as “responsive, creative and driven.” PHOTO: Will Morgan
Royer is one of those architects who would rather not raze a house that stood here for decades, but the tiny house at 19 Boylston was unsalvageable. Yet he kept the existing footprint for the foundation of the new home. There is no concrete slab underneath, just gravel; no structural steel was used. These are examples of minimizing carbon and greenhouse emissions during construction. Royer had worked with the Providence contractor Halmac Construction before, and along with Rhode Island Energy, they all brainstormed to achieve a Zero Energy dwelling.

Given the design’s incredibly tight envelope, along with various heat pumps, dense-pack cellulose insulation, and reinforced windows, 19 Boylston will use half the energy of a similar-sized conventionally-built house. The new owners will live in the house for a year to assess its energy usage and to gauge how many, if any, photovoltaic roof panels will be needed to fully achieve a net zero-rating.

 

19 Boylston Avenue: elevations, site plan, and the earlier house. Royer Architects

 

Royer and his builders explored many possible ways to build somewhere between Rhode Island’s low bar of code compliance and the prohibitively expensive passive house standards. The architect-patron’s goal was a house that is durable, comfortable, and healthy. What was important for Chris and Barbara are all the things you cannot see.

 

18 Boylston Avenue, by Kite Architects, the first Leadership in Energy and Environmental Design certified house in Providence, is a somewhat unsympathetic attempt to fit in with its neighbors. PHOTO: Will Morgan

  

Royer’s achievement here is a satisfying and sensible cottage-like home on this attractive street between the Quaker Meeting and Hope Street. It demonstrates more than the saving of energy and being environmentally responsible. It shows how more sensible domestic architecture that can be inserted into smaller lots, with less bombast. Royer’s new Providence home shows the benefits of a more unassuming presence, designing for the long term, rather than sounding brass, or tinkling of cymbal.

 

Backyard view from 19 Boylston Avenue, looking at the rear of houses on Morris Avenue. PHOTO: Will Morgan

Enjoy this post? Share it with others.